4.12.2025

Rock Golf Klubitalo

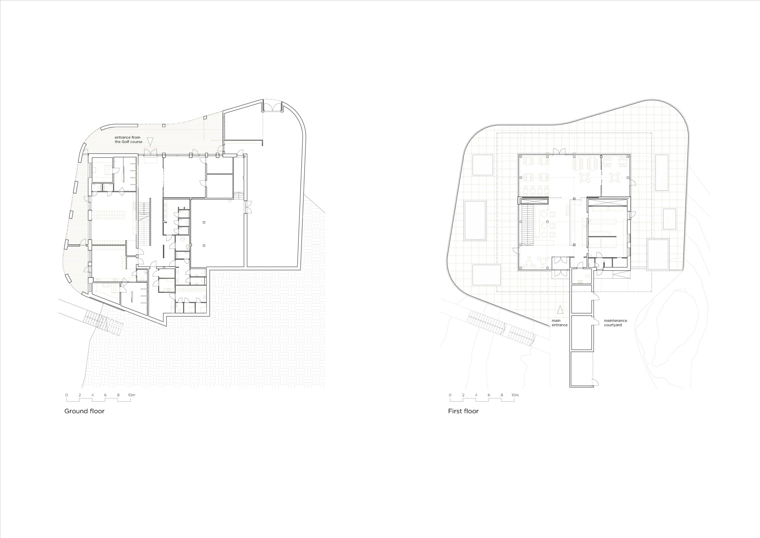
Rock-Course Klubitalo on suunniteltu Siuntion Pickalaan kallioisen mäntymetsän syleilyyn, uuden maailmanluokan 9-reikäisen par 3 -Rock-kentän keskukseksi. Se on sekä golftoiminnan keskus että viihtyisä ravintola ja kohtaamispaikka, joka tarjoaa pelaajille ja vierailijoille korkeatasoiset golfin palvelut, laadukkaan ravintolan sekä niihin liittyvät laajat oleskelu- ja terassialueet, joilta avautuvat maisemat koko Pickalan ainutlaatuiseen golfmiljööseen.

Uusi Rockin golfkenttä asettuu kauniisti alueen kallioharjanteiden muodostamaan laaksoon. Klubirakennus sijaitsee laakson päässä ja on sovitettu huolellisesti kallioisen mäntymetsän reunaan. Se asettuu pienelle kallionyppylälle väistäen paikalla olevat vanhat männyt, avokalliot ja kivilohkareet. 

Arkkitehtonisesti rakennus jäsentyy kahteen luonteeltaan erilaiseen kerrokseen, mitä myös materiaalien kontrasti korostaa: valkobetoninen pohjakerros muodostaa vapaamuotoisen jalustan yläpuoliselle puiselle ravintolapaviljongille. Toimintojen jakaminen kahteen kerrokseen  mahdollistaa ravintolan joustavan käytön myös erillään golfin toiminnoista. 

Yläkerran ravintola on lämmin, rauhallinen ja mittakaavaltaan inhimillinen tila, jonka sisäkattoa rytmittää näyttävä liimapuupalkkirakenne. Luonnonvalo tulvii sisään suurista ikkunoista, liittäen sisätilat saumattomasti ulkona avautuvaan maisemaan. Ravintolaa ympäröi koko kerroksen kiertävä terassi, joka tarjoaa ainutlaatuisen näkymän kaikille neljälle Pickalan golfkentälle – Rockiin, Forestiin, Parkiin ja Seasideen.

Sisäportaat johdattavat ravintolan alapuoliseen jalustaosaan, jossa sijaitsevat golfklubin ydintoiminnot: caddie masterin palvelut, pro shop, pukuhuoneet ja saunat sekä golfautohalli.  Sisustusmateriaalivalinnoissa on painotettu laatua, kestävyyttä, ajattomuutta ja käyttömukavuutta sekä äänenvaimennusta.

Rakennuksen jalustaosan kaareileva muoto mukailee ympäröivää maastoa ja vertautuu golfkentän viheriöiden muotoihin. Pystyuritettu valkobetonijulkisivu elää päivänvalon mukana, luoden rakennukselle jatkuvasti muuttuvan ilmeen. 

Kokonaisuuden täydentää pihasuunnitelma, jossa luonnonmukaiset istutukset, kivirakenteet ja polut sulautuvat kalliometsän ympäristöön. Ne muodostavat pehmeän siirtymän sisätilojen ja golfkentän välillä.

Puurakentamisen yksityiskohtia

Yläkerroksen ravintolapaviljonki rakentuu korkealaatuisista puurakenteista, jotka tuovat rakennukseen lämpöä, inhimillistä mittakaavaa ja luonnonläheisyyttä. Massiivipuinen kattorakenne muodostaa tilaan rytmikkään, veistoksellisen kokonaisuuden, joka korostaa sisätilan arkkitehtonista ilmettä ja tukee rakennuksen luontevaa istumista metsäiseen ympäristöön.

2.kerroksen julkisivut, sekä 1. kerroksen vilvoitteluterassien julkisivut on toteutettu UTS 18×70 -ulkoverhouspaneeleilla, jotka on valmistettu valkotammesta ja käsitelty kuultavalla pintakäsittelyllä (Rubio Monocoat, 1. käsittely: Tamin Primer, 2. käsittely: Hybrid Wood Protector, väri Wet Oak). Kuultokäsittely antaa puun luonnolliselle syykuviolle mahdollisuuden näkyä ja tuo pinnalle hienostuneen, ajattoman sävyn. Verhousmateriaalin valinta yhdistää rakennuksen ympäröivään metsään sävyltään ja tekstuuriltaan, samalla tarjoten kestävyyttä ja pitkäikäisyyttä vaihtelevissa sääolosuhteissa.

Tekniset ratkaisut

Rakennuksen rakenteellinen kokonaisuus on suunniteltu tukemaan sen arkkitehtonista ideaa ja kestävyyttä. Jalustaosa muodostuu teräsbetonielementeistä ja ontelolaatoista, joita täydentävät valkobetoniset kuorielementit. Yläkerroksen ravintolapaviljonki kohoaa massiivipuisen pilariston ja liimapuupalkkien varaan. Rakennuksen jäykistysratkaisut perustuvat jäykistävään yläpohjaan, jossa käytetään 40 mm kolmikerroslevyjä.

Paloteknisesti rakennus kuuluu paloluokkaan P2. Savunpoisto on toteutettu painovoimaisesti, ja pintamateriaalit täyttävät kokoontumis- ja liiketilojen vaatimukset (C-S2, d1), mikä takaa turvallisuuden tinkimättä esteettisyydestä.

Akustiikka on suunniteltu huolellisesti, jotta ravintolakerros säilyttää rauhallisen ja miellyttävän äänimaailman. Alaslasketun puuverhottujen rimakattojen yläpuolelle sijoitetut äänenvaimennuslevyt hillitsevät kaikua, kun taas verhot ja matot toimivat sekä sisustuksellisina että akustisina elementteinä. Lisäksi mikrorei’itetty puuverhoilu valituilla seinäpinnoilla parantaa puheen selkeyttä ja vähentää hälyä.

Rakennuksen talotekniikka tukee kestävän kehityksen tavoitteita. Ilmanvaihto on koneellinen ja varustettu lämmöntalteenotolla. Lattialämmitys ja ilmanvaihto huolehtivat lämmityksestä, ja päätiloissa on jäähdytys. Katolle on varattu tila aurinkopaneeleille, ja pihalle sijoitetut maalämpökaivot tuottavat osan kiinteistön energiasta – ratkaisut, jotka yhdistävät modernin mukavuuden ja ekologisuuden.

Rakennushanke

Suunnittelu käynnistyi elokuussa 2023, ja rakentaminen aloitettiin helmikuussa 2024. Puupalkkien asennus toteutettiin elokuussa 2024, ja koko hanke valmistui kesäkuussa 2025. Toteutus tehtiin projektijohtourakkana.

Tekijät

Santeri Lipasti, Pääsuunnittelija
Marcel Ulmer, Rakennussuunnittelija ja projektipäällikkö
Julia Falck, Projektiarkkitehti
Olli Kivinen, Projektiarkkitehti
Nina Kapli, Suunnitteluassistentti

Santeri Lipasti on toinen Huttunen-Lipasti Arkkitehtien perustajista ja osakas. Hän perusti toimiston vuonna 1998 yhdessä Risto Huttusen kanssa, ja siitä lähtien toimisto on kasvanut noin 20 hengen asiantuntijayhteisöksi.

Huttunen-Lipasti Arkkitehdit on Helsinkiläinen arkkitehtitoimisto, joka tunnetaan tinkimättömästä suunnittelun laadusta, vahvasta materiaalitajusta ja herkkyydestä rakennettuun sekä luonnon ympäristöön. Toimiston työt ovat voittaneet yli 20 arkkitehtuurikilpailua ja saaneet tunnustusta myös kansainvälisesti. Toimiston työt vaihtelevat laaja-alaisesti asuinrakentamisesta julkiseen rakentamiseen ja kiinteistökehitykseen sisältäen niin uudis- kuin korjausrakentamista.

Faktat kohteesta

Rock Golf Klubitalo

  • Sijainti | Siuntio
  • Käyttötarkoitus | Golfklubi: Ravintola sekä caddie masterin palvelut, pro shop, pukuhuoneet, saunat sekä golfautohalli
  • Rakennuttaja/Tilaaja | Rock-Course Oy
  • Valmistumisvuosi | 2025
  • Kerrosala | 1 076 m2
  • Kokonaisala | 1 363 m2
  • Tilavuus | 5 326 m3
  • Arkkitehtisuunnittelu | Huttunen-Lipasti Arkkitehdit Oy
  • Rakennesuunnittelu | Sipti Oy
  • Akustiikkasuunnittelu | Promethor
  • Palotekninen suunnittelu | Jensen Hughes
  • LVIA-suunnittelu | Duopoint
  • Sisustussuunnittelu | Franz Design Oy
  • Muut suunnittelijat ja asiantuntijat | Projektijohto: GSP Group Oy. Maisemasuunnittelu: Maanlumo Oy. Golfkenttäsuunnittelu: Tilander GolfDesign Oy. Geosuunnittelu: Sipti Oy. Betonielementtien suunnittelu: Insinööritoimisto Kantelinen Oy.
  • Pääurakoitsija | GSP Group Oy
  • Muut rakennusliikkeet | Länsimäki Group Oy
  • Puuosien toimittaja | Versowood Oy
  • Muut materiaalit | Mikrorei’itetty seinäpaneelit: Puucomp Oy
    Rima-alakatot: Siparila Oy
  • Valokuvat | Marko Huttunen
  • Teksti | Santeri Lipasti ja Julia Falck