Vihdin siunauskappeli
Arkkitehtuuri
Uusi siunauskappeli sulautuu arvokkaasti Vihdin hautausmaan kauniiseen ja vehreään maisemaan, vanhojen lehmusten muodostamaan kehykseen. Rakennuksen jyrkkä ja symmetrinen harjakatto kunnioittaa perinteistä kirkkoarkkitehtuuria, mutta luo samalla oman symbolisen merkityksensä: pituussuunnassa kappelisaliin päin kohoava muoto kuvaa ihmisen matkaa ajassa kohti ikuisuutta.
Kappelin materiaalimaailma on pelkistetty ja harkittu. Rakennus on hirsirakenteinen, ja kuultokäsitellyt hirret jätetään näkyviin sekä ulkona että sisällä. Vaalean hirren rinnalla tumma metallinen katto luo voimakkaan kontrastin. Katto laskeutuu paikoin julkisivuille seinäkkeinä, jotka tuovat rakennukseen kolmiulotteisuutta ja kätkevät taakseen syöksytorvet ja talotekniikkaa. Tummaa ulkokuorta vasten vaalea hirsi hohtaa lämpimänä ja kutsuvana. Kappelisalia kiertävä kuusiaita rajaa puolijulkisen ulkotilan rauhoittumista varten ja luo yksityisyyttä tilaisuuksille.
Vierailijan kulku kappeliin tapahtuu vehreiden nurmi- ja istutusalueiden halki. Pääovilta saavutaan aulan kautta kappelisaliin, jonka korkea harjakatto ja minimalistinen sisustus luovat tilaan arvokkuutta ja pyhyyttä. Hirsipinnat tuovat siunaustilaisuuteen lämpöä ja turvallisuutta, kun taas suuret lasipinnat avaavat näkymät peltomaisemaan ja päästävät sisään runsaasti lohtua tuovaa luonnonvaloa.
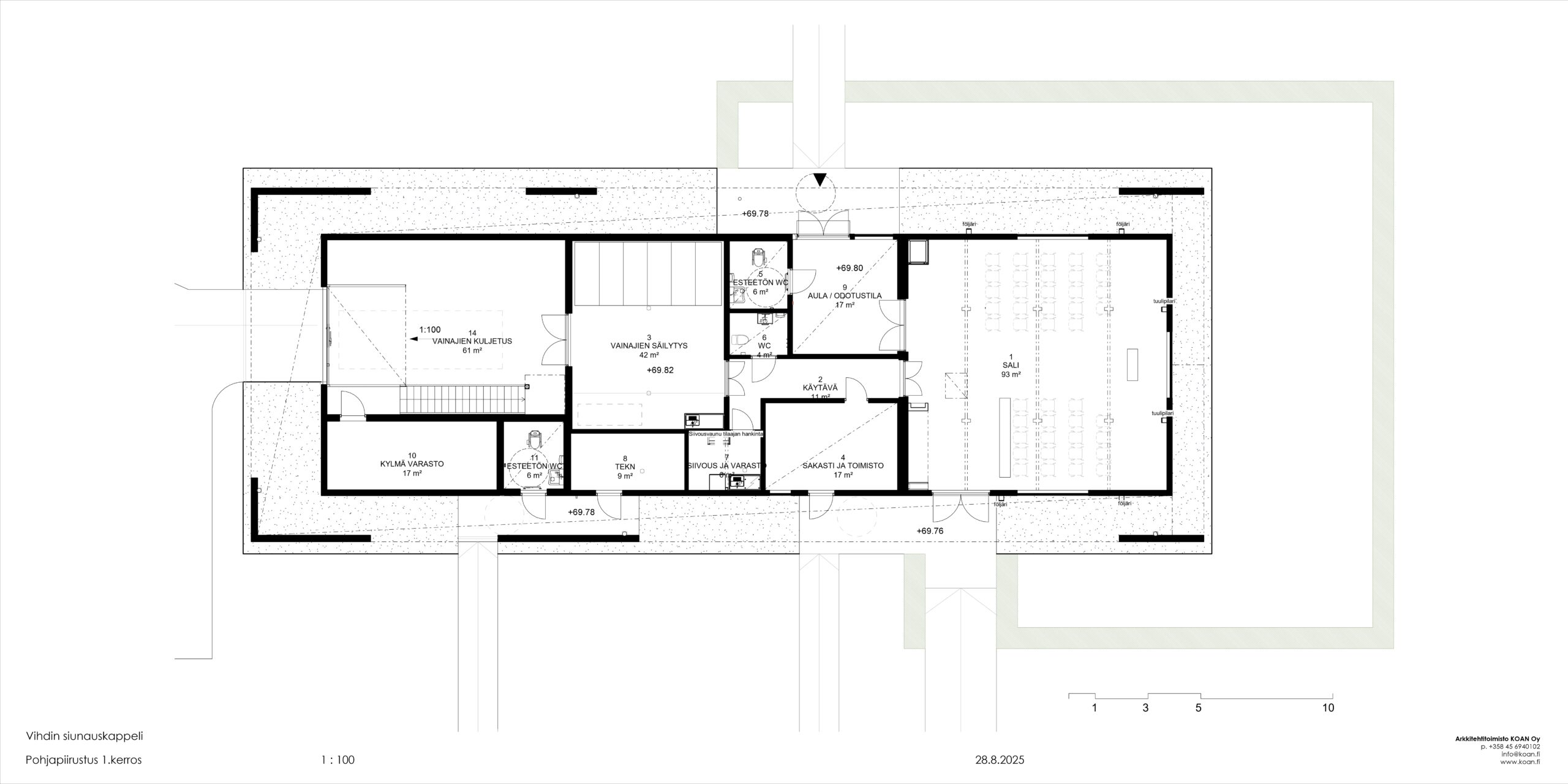
Kappelisalin lisäksi rakennukseen sisältyy tilat vainajien säilytykselle, sakastille, pienelle toimistolle sekä aputiloille. Ruumisautolle on järjestetty oma sisäpuolelta suojattu tila kappelin päädyssä, mikä mahdollistaa vainajan kuljetuksen arvokkaasti katseilta suojassa.
Siunaustilaisuuksien lisäksi kappelisalia voidaan käyttää joustavasti myös muihin tarkoituksiin, kuten konsertteihin ja erilaisiin tapahtumiin.
Tekniset ratkaisut
Vihdin uusi siunauskappeli on massiivihirsirakenteinen kokonaisuus, jossa puurakenteet ovat sekä kantavia että näkyviä. Honkarakenne Oyj:n toimittama hirsirunko muodostaa rakennuksen pääasiallisen jäykistävän rakenteen yhdessä tarkoin suunniteltujen liitosten ja katon rakenteiden kanssa. Rakennuksen vaippa hyödyntää kuultokäsiteltyä massiivipuuta ja tummaa metallikatetta, joka jatkuu osin julkisivuille muodostaen tekniset seinäkkeet sadevesijärjestelmien ja talotekniikan suojaamiseksi. Ratkaisulla saavutetaan sekä minimalistinen estetiikka että rakenteiden pitkäikäisyys.
Palotekniset ratkaisut: Rakennuksen paloluokka on P3, joka mahdollistaa näkyvät puu- ja hirsipinnat. Massiivihirsi käyttäytyy palossa ennustettavasti ja kantavuus säilyy hiiltymiskerroksen ansiosta pitkään. Rakenteet on mitoitettu R60-luokan palonkestoon, (arvioitu suunnitelmien pohjalta) ja EI30-palo-osastointi erottaa kappelisalin, vainajatilat sekä tekniset tilat toisistaan. Palotilanteessa savu poistetaan ullakon ilmanvaihtokonehuoneen savunpoistoluukun ja kappelisalin savunpoistoikkunan kautta. Rakennuksen palotekninen korkeus ylittää P3-paloluokan salliman 9 metrin. Ylitys hyväksytettiin rakennus – ja palotarkastajalla.
Akustiikka: Kappelisalin suunnittelussa tavoiteltiin luonnollista, rauhallista ja puhdasta ääniympäristöä siunaustilaisuuksiin ja konsertteihin. Massiivipuun huokoinen pinta pehmentää heijastuksia ja vähentää jälkikaiuntaa. Akustiikkaa tukevat myös tilan korkeusvaihtelut ja salin laaja, yhtenäinen muoto, joka ohjaa äänen hallittua leviämistä ilman lisärakenteita. Jäykistys: Rakennuksen jäykistys perustuu kokonaisvaltaiseen ratkaisumalliin, jossa hirsirunko toimii yhdessä kattorakenteen, välipohjan ja jäykistävien väliseinien kanssa. Katon ristikkorakenne, tuulipilarit sekä hirsien nurkkaliitokset muodostavat tehokkaan jäykistysjärjestelmän, joka kestää myös suuria tuuli- ja lumikuormia
Rakennushanke
Vihdin uuden siunauskappelin suunnittelu käynnistyi vuonna 2022, kun Vihdin seurakunta käynnisti hankesuunnittelun yhdessä KOAN Arkkitehdit Oy:n (arkkitehdit Marko Simsiö ja Johannes Koskela) kanssa. Rakennuslupa myönnettiin alkuvuodesta 2024, ja rakentaminen käynnistyi kesäkuussa 2024 maarakennustöillä. Honkarakenne Oyj aloitti hirsirungon toimitukset ja asennuksen elokuussa 2024, ja rungon valmistuminen ajoittui lokakuuhun 2024. Harjannostajaisia vietettiin 3.12.2024, ja sisätyöt ovat jatkuneet kevääseen 2025. Rakennus valmistui ja rakennusvalvonnan loppukatselmus pidettiin 27.5.2025.
Urakkamuoto: Hankkeessa sovellettiin jaettua urakkamallia, jossa runko-, sisustus-, LVIAS-, vesikatto- ja maanrakennusurakat kilpailutettiin erikseen. Sisustusurakoitsija (Vihdin Rakennusurakointi Oy) toimi sisustusvaiheen päätoteuttajana, ja LVIAS-urakat alistettiin sen alaisuuteen. Tämä mahdollisti hirsirungon eriytetyn toimituksen, laadun hallinnan ja urakoiden tarkan aikataulutuksen.
Hankinnat ja resurssit: Merkittävimmät toimijat olivat Honkarakenne (hirsirunko), Kreate Oy (perustukset ja maarakennus), Suomen Vaskisepät Oy (vesikatto), Esasähkö Oy (sähkö), LVI Ossi Pajunen Oy (putkityöt), Peltityöt Kuula Oy (IV), MH-Control Oy (automaatio) ja Rototec Oy (maalämpö). Rakennuttamisen ja valvonnan hoiti Expecon Oy.
Keskeiset opit:
- Jaetun urakan hyöty: mahdollisti hallitun kokonaisuuden ja riskienhallinnan, erityisesti puurunkoerityisyyksien vuoksi.
- Tekninen integraatio: sadevesien ja talotekniikan piilottaminen rakenteisiin loi puhtaan arkkitehtuurin ilman kompromisseja.
- Kestävyys ja energiatehokkuus: maalämpö, massiivipuun hiilensidonta ja pitkän elinkaaren ratkaisut tukevat kestävän rakentamisen tavoitteita.
Monikäyttöisyys: tila palvelee sekä hautajaisia että musiikkiesityksiä, mikä vaati akustiikan ja valaistuksen erityissuunnittelua.
TEKIJÄT
Arkkitehtitoimisto KOAN Oy
Arkkitehtitoimisto KOAN Oy on helsinkiläinen arkkitehtitoimisto, jonka ovat perustaneet arkkitehdit Marko Simsiö ja Johannes Koskela. Toimisto yhdistää tuoreen näkemyksen ja vahvan teknisen osaamisen kestävää kehitystä tukevaan suunnitteluun.
Arkkitehtitoimiston erityisosaamisena on kestävää kehitystä tukeva puuarkkitehtuuri eri mittakaavoissa – aluesuunnitelmista yksittäisiin rakennuksiin. Toimisto on suunnitellut useita massiivipuurakenteisia asuinalueita, julkisia rakennuksia ja pientaloja eri puolille Suomea, ja se on saanut tunnustusta useissa arkkitehtuurikilpailuissa.
Suunnittelun lähtökohtina ovat ihmisläheisyys, pehmeät arvot ja paikan hengen kunnioittaminen. Toimisto pyrkii tuomaan arkkitehtuuriin uusia näkökulmia samalla kunnioittaen rakennusperinteitä ja ympäröivää kontekstia.
Toimiston toimintaa ohjaa ajatus siitä, että parhaat ratkaisut syntyvät aktiivisen ja innovatiivisen yhteistyön kautta, jossa asiakkaan ja käyttäjän toiveet otetaan tarkasti huomioon.
Arkkitehti Marko Simsiö on opiskellut arkkitehtuuria Oulun yliopistossa sekä Tecnológico de Monterrey -yliopistossa Meksikossa. Ennen yrittäjäksi ryhtymistään hän työskenteli muun muassa OOPEAA-, AFKS- ja Lahdelma & Mahlamäki -arkkitehtitoimistoissa.
Simsiön erityisosaamisena on kestävää kehitystä edistävä puuarkkitehtuuri. Hänen suunnittelutyössään pohjoismainen ja japanilainen puuarkkitehtuuri toimivat inspiraation lähteinä, joita hän soveltaa moderneihin ratkaisuihin.
Vuodesta 2021 lähtien hän on toiminut toisena perustajaosakkaana Arkkitehtitoimisto KOAN Oy:ssä, joka keskittyy ekologisen puuarkkitehtuurin kehittämiseen eri mittakaavoissa.
Johannes Koskela valmistui arkkitehdiksi Oulun Yliopistosta vuonna 2017. Koskela on toiminut laaja-alaisesti arkkitehtuurin kentällä mm. yrittäjänä ja opettaja Oulun yliopistolla erikoistuen puurakentamiseen. Vuodesta 2021 lähtien hän on luotsannut toisena perustajaosakkaana kestävää kehitystä tukevaan puuarkkitehtuuriin erikoistunutta arkkitehtitoimisto KOAN Oy:tä.


Faktat kohteesta
Vihdin siunauskappeli
- Sijainti | Irjalan hautausmaa, Kartanontie 31, 03400 Vihti
- Käyttötarkoitus | Siunauskappeli
- Rakennuttaja/Tilaaja | Vihdin Seurakunta
- Valmistumisvuosi | 2025
- Kerrosala | 308 m2
- Kokonaisala | 448 m2
- Tilavuus | 1 608 m3
- Investointikustannukset | 2 250 000€
- Arkkitehtisuunnittelu | Arkkitehtitoimisto KOAN Oy. Marko Simsiö (Arkkitehti SAFA) ja Johannes Koskela (Arkkitehti SAFA)
- Rakennesuunnittelu | Expecon Oy
- Akustiikkasuunnittelu | Arkkitehtitoimisto KOAN Oy / Expecon Oy
- Palotekninen suunnittelu | Arkkitehtitoimisto KOAN Oy / Expecon Oy
- LVIA-suunnittelu | Expecon Oy
- Sähkösuunnittelu | Havukorpi Oy
- Sisustussuunnittelu | Arkkitehtitoimisto KOAN Oy
- Pääurakoitsija | Vihdin Rakennusurakointi Oy
- Puuosien toimittaja | Honkarakenne Oyj
- Muut materiaalit | Julkisivun kuultokäsittely (Diotrol)
- Valokuvat | Kalle Kouhia
- Teksti | Marko Simsiö (Koan Oy) ja Tero Pylkkänen (Honkarakenne Oyj)