12.9.2025

Jaala Areena

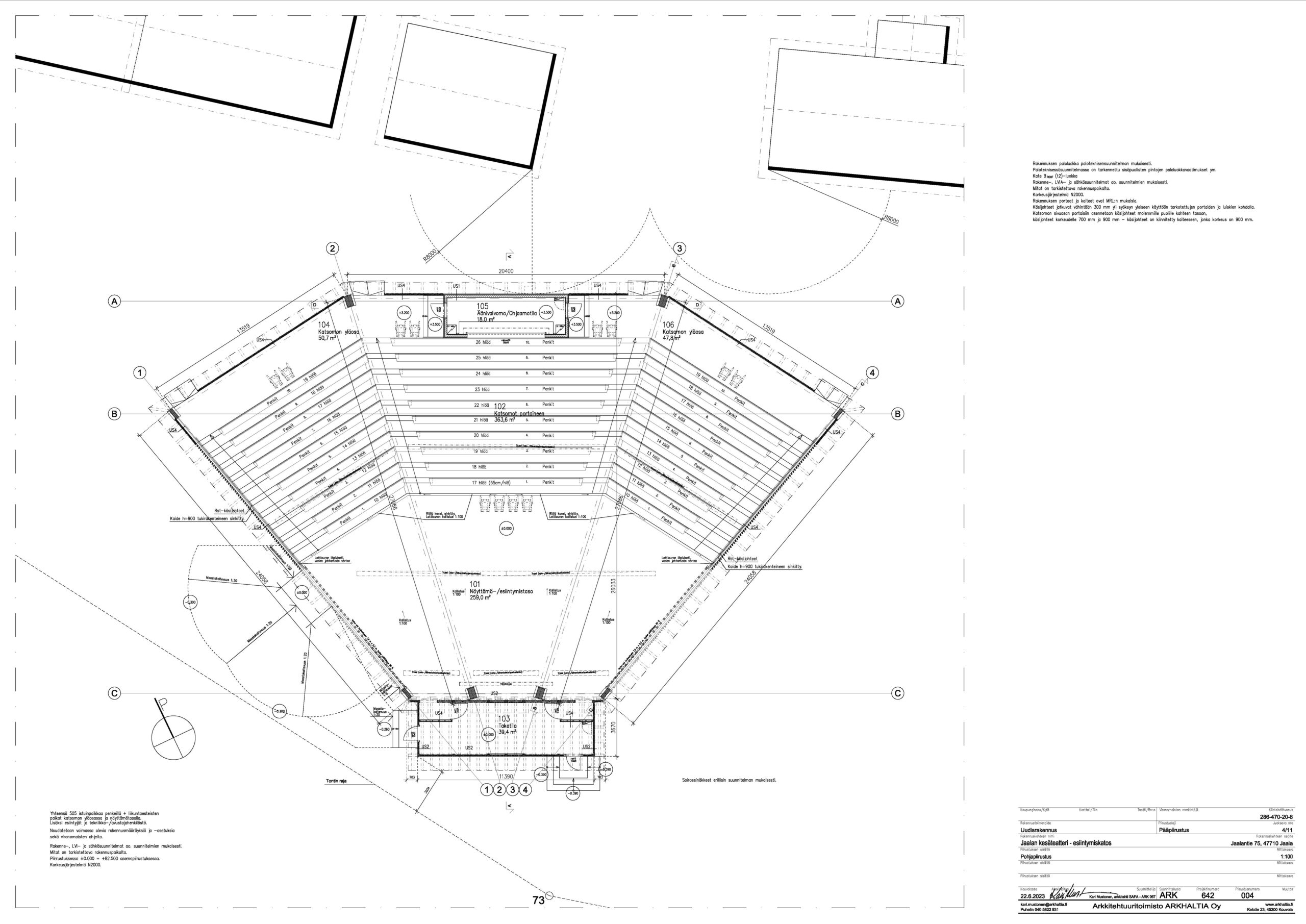
Jaalan vanhan kesäteatterin paikalle Liikasenmäelle valmistui toukokuussa 2025 uusi Jaala Areena. Rakennuksen laajuuden määrittelivät 550 katsojapaikkaa, ylätasanteen esteettömät katsomopaikat sekä esiintyjien valmistautumis- ja esiintymistilat.

Jaalan Areena voitti yleisöäänestyksen Puupalkinto 2025 kilpailussa.

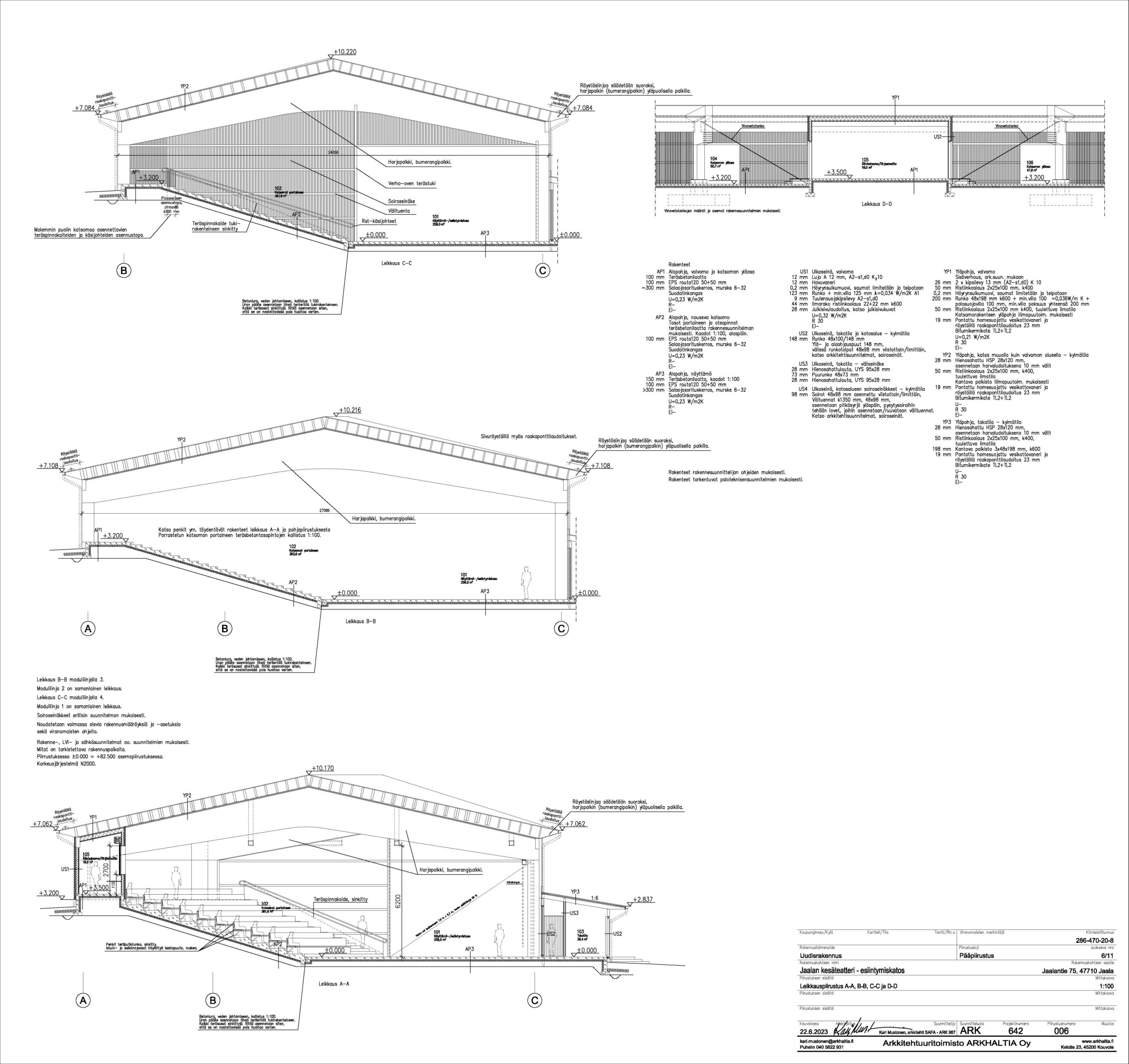
Rakennuksen pohjamuoto on mukaelma roomalaisesta teatterista, jossa katsomo ja katetut takatilat on sovitettu rakennuspaikan korkoerojen ja kiinteistön rajojen antamiin raameihin. Katsomosta avautuu pilarivapaa näkymä esiintymisalueelle, ja soiroseinäkkeiden sekä tukipilareiden lomasta voi katsella Pyhäjärven maisemaa. Rakennuksen kattoon valittiin liimapuiset kaarevaharjapalkit eli bumerangipalkit, jotka sopivat yhteen nykyisten rakennusten harjakattojen kanssa.

Rakennuksen ulkoseinillä on liimapuupilarit tukirakenteineen. Palkkien näkyvyyttä on korostettu kuultovärillä, jolloin ne erottuvat taustan mustasta väristä. Musta valittiin rakennuksen sisäpuolen pääväriksi, jotta rakenteet ja pinnat muodostaisivat yhtenäisen taustan. Ulkoapäin soiroseinäkkeiden lomasta näkyy areenan sisälle ja maisemaan, ja sen musta väritys luo selkeän kokonaisuuden alueen vanhojen punaisten rakennusten kanssa. Uusi katoksena toimiva Areena on integroitu vanhaan, suojeltuun kulttuurimaisemaan ja sen rakennuksiin.

Areenan musta väri viestii myös tekijöiden historiaa: monet hankkeessa mukana olleista ovat karjalaisjuurisia, ja areenan musta väri tuo alueelle Karjalan perinteiset värit, mustan ja punaisen, läsnä oleviksi.

Tekniset ratkaisut

Rakennuksen paloluokka on P2 ja sen kantavat primäärirakenteet ovat R30-luokiteltuja. Rakennuksessa on sähköinen äänentoisto ja induktiosilmukka.

Rakennus on jäykistetty mastopilareilla molempiin suuntiin. Lisäksi heikomman suunnan liimapuupilareissa on teräksiset vinojäykisteet. Nämä jäykisteet on toteutettu teräksisillä vinovetotangoilla rakennuksen takaosassa soiroseinäkkeiden vieressä ja ristiin asennetuilla vetotangoilla esiintymisalueen taustalla.

Yläpohjan sekundäärirakenteet koostuvat puurakenteisista, lämpö- ja vesieristetyistä kattoelementeistä. Niiden avulla estetään mahapalkkien kiepahdus siirtämällä kuormitus päätyjen pilareille.

Kohteessa on avattavat tuuliverhoseinät, joiden läpi näkyy ympäröivään maisemaan. Rakennuksen alapohja on maanvarainen teräsbetonilaatta, joka porrastuu rinteen mukaan. Liimapuupilarit lähtevät teräsbetoniselta korotetulta perustalta.

Rakennushanke

Hankkeen toteutuksen suurin voimavara on ollut sen yhdistysvetoinen luonne ja laaja talkootyö. Paikalliset ihmiset ovat tehneet kohteeseen yli 10 000 talkootuntia.

Rakennusluvan mukaiset työt aloitettiin 5. elokuuta 2024. Runkorakenteiden asennukset ja muiden kantavien rakenteiden toteutus tehtiin ulkopuolisen urakoitsijan voimin, mutta kaikki muu on talkootyötä. Tilat otettiin käyttöön toukokuussa 2025, ja virallisia avajaisia vietettiin 5. kesäkuuta 2025. Samana päivänä järjestettiin myös ensimmäinen yleisölle suunnattu esitys.

Hankkeen myötä vanhat rakennukset uudistettiin nykyaikaisiksi. Niihin rakennettiin uudet wc-, kanttiini- ja ravintolatilat, ja ne otettiin käyttöön samalla kun ensimmäiset esitykset aloitettiin. Koko hanke valmistui lopullisesti elokuussa 2025.

Hankkeen lopputulos on upea osoitus yhteisöllisyyden voimasta: kulttuuriympäristöön istutettu upea kokonaisuus, joka on samalla toiminnallinen piristysruiske koko Jaalan kylälle. Ensimmäisen kesäkauden kävijämäärä, yli 21 000 henkilöä, täytti tai jopa ylitti odotukset.

TEKIJÄT

Petri Ryynänen, Lions Club Jaala ry pj, kaiken toteutuksen ”moottori”
petri.ryynanen@upm.com

Kari Mustonen, Arkhaltia oy, kohteen arkkitehti ja pääsuunnittelija
kari.mustonen@arkhaltia.fi

Faktat kohteesta

Jaala Areena

  • Sijainti | Jaala
  • Käyttötarkoitus | Monitoimiareena
  • Rakennuttaja/Tilaaja | Jaalan Lions Club
  • Valmistumisvuosi | 2025
  • Kokonaisala | 900 m2
  • Arkkitehtisuunnittelu | Arkkitehtuuritoimisto ARKHALTIA Oy
  • Rakennesuunnittelu | RI-Plan Oy
  • Palotekninen suunnittelu | Sampel Oy
  • Sähkösuunnittelu | Sähkösuunnittelu Kepsu Oy
  • Pääurakoitsija | Ralvia Oy
  • Puuosien toimittaja | Versowood Oy
  • Valokuvat | Petri Ryynänen
  • Teksti | Kari Mustonen, ARKHALTIA Oy
    Jarno Pylvänen, RI-Plan Oy
    Esa Inkilä, vt rakennusvalvontapäällikkö, Kouvola