12.9.2025

Linnunradan päiväkoti

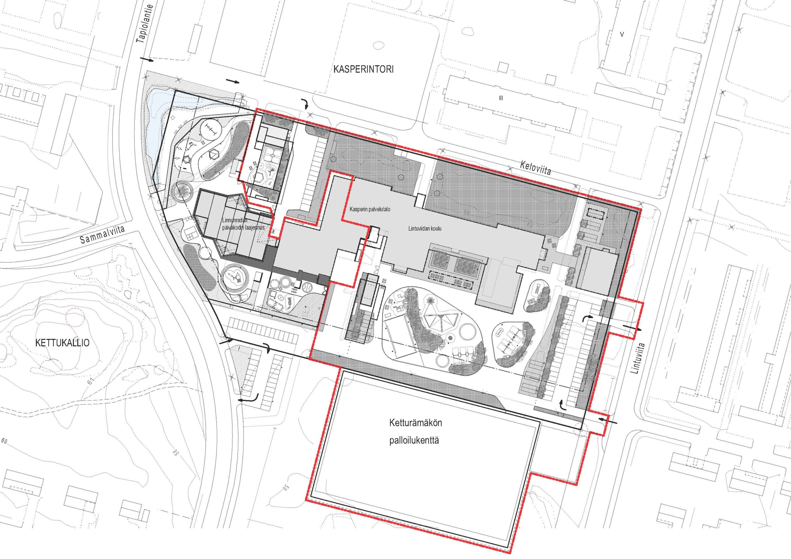
Seinäjoen Kasperin kaupunginosassa sijaitseva Linnunradan päiväkodin laajennus on valmistunut. Laajennus täydentää alueen alkuperäistä rakennuskokonaisuutta, johon kuuluvat myös Lintuviidan koulu ja palvelutalo. Uusi rakennus on sovitettu tarkasti tontin polveilevaan muotoon.

Alkuperäisen rakennuksen arkkitehtuuri on kylämäinen ja tasapainottaa ympäristön korkeita kerrostaloja. Laajennus jatkaa tätä periaatetta hyödyntäen luontevasti puumateriaalia. Rakennuksen punainen väri antaa uinuvalle lähiölle uutta energiaa ja kunnioittaa samalla alueen perinteisiä punamultaisia ja punatiilisiä rakennuksia.

Julkisivulle ominaisen ilmeen luo paanumainen ladonta. Yksityiskohtia lisäävät tuuletusikkunoiden rei’itetyt suojalaudoitukset, puuverhouksen viistot tippanokat ja eteläjulkisivun metalliset auringonsuojalipat, jotka tekevät rakennuksesta kutsuvan ja helposti lähestyttävän.

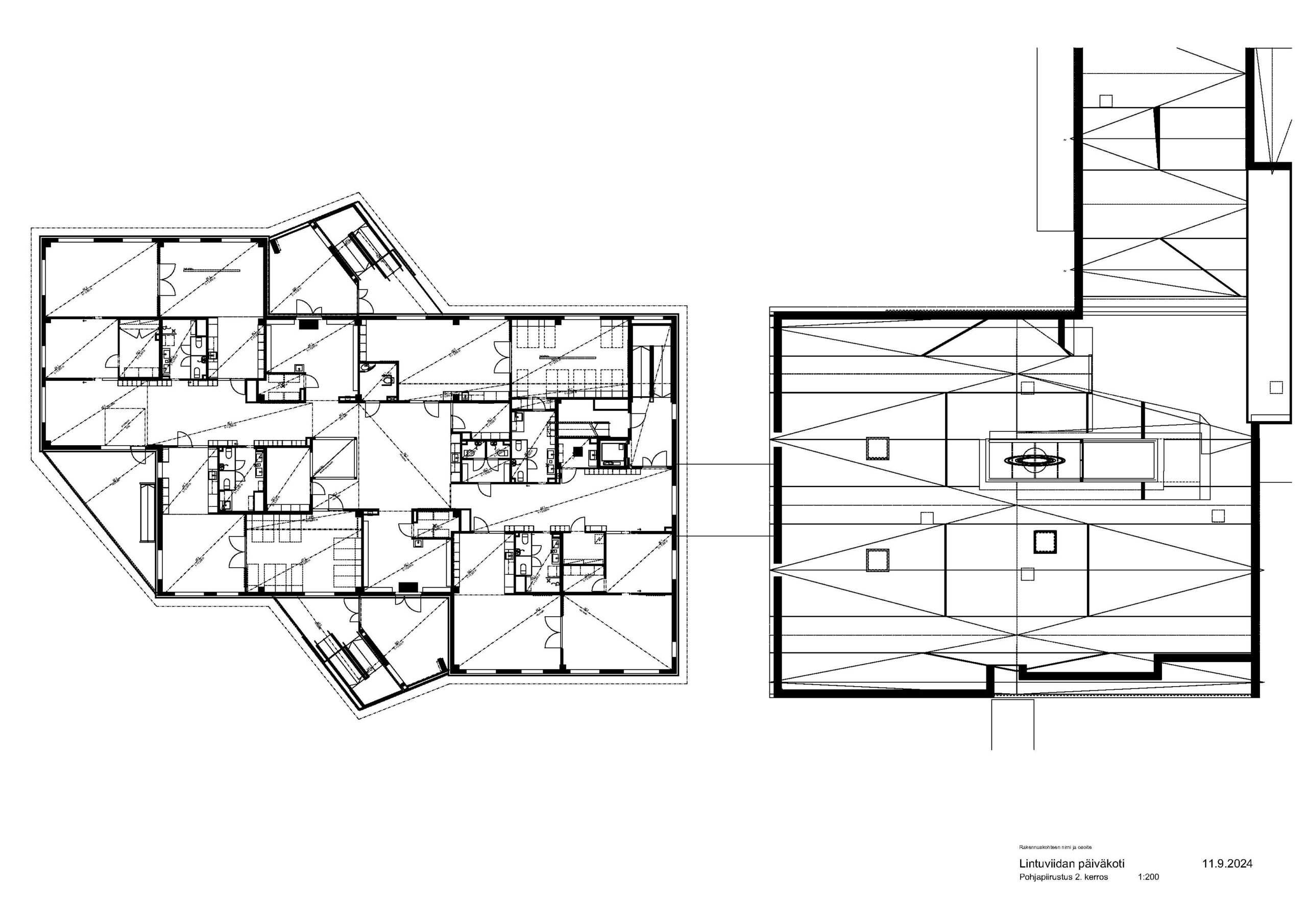
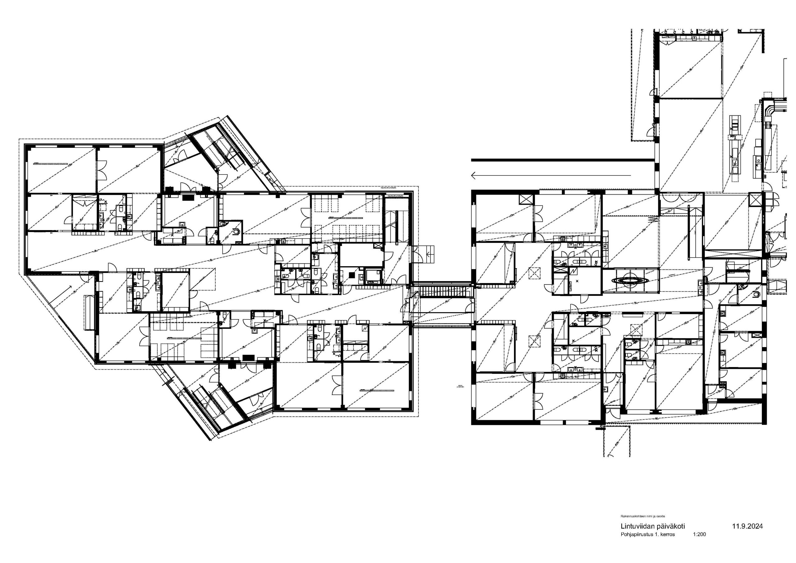
Suuri, 210 lapsen päiväkoti on jaettu kahdeksaan ryhmään, joilla on omat turvalliset ja joustavat tilansa.

Tekniset ratkaisut

Päiväkodin runko on hybridirakenne, joka yhdistää betonipilari-palkki-järjestelmän sekä puurakenteiset seinä- ja yläpohjarakenteet. Rakennuksen kestävä kehitys perustuu periaatteeseen: oikea materiaali oikeassa paikassa. Teräsbetonirunko luo kestävän pohjan, jota on täydennetty puurakenteilla aina kun mahdollista, korvaten hiili-intensiivisempiä materiaaleja.

Sisätiloissa puu on keskeisessä roolissa, ja sitä on käytetty muun muassa irto- ja kiintokalusteissa. Lämpimänsävyinen puusementtikuitulevy lisää tekstuuria erilaisilla uritus- ja viilupinnoilla. Muut sisätilojen sävyt tasapainottavat ja raikastavat puun sävyjä.

Tilojen muuntojoustavuus on suuri, sillä kantavia seiniä on vähän. Pitkien jännevälien betonipilari-palkki-runko mahdollistaa väliseinien myöhemmät muutokset.

Uudisrakennuksessa on vesikiertoinen lattialämmitys. Ilmanvaihto on hajautettu usealle koneelle, mikä on mahdollistanut järkevät kanavakoot. Konehuoneet on integroitu osaksi arkkitehtuuria harjakattojen alle, ja raitisilmasäleiköt on sopeutettu julkisivun ilmeeseen ja väritykseen. Myös valaistus on elämyksellinen ja himmennettävissä.

Päiväkodin sijoittuminen vanhan rakennuksen lähelle P2-paloluokassa on mahdollistettu paloteknisellä suunnittelulla ja yhdyskäytävän osastoimisella. Ulkoseinä on näin voitu säilyttää yhtenäisenä puurakenteisena. Ulkoisten porrashuoneiden ritilät on suojattu palosuojamaalauksella.

Rakennushanke

Seinäjoen kaupungin tilapalvelut valitsi urakkamuodoksi jaetun urakkamallin. Rakennushanke koostuu kolmesta vaiheesta:

  1. Päiväkodin laajennus valmistui kesällä 2024.
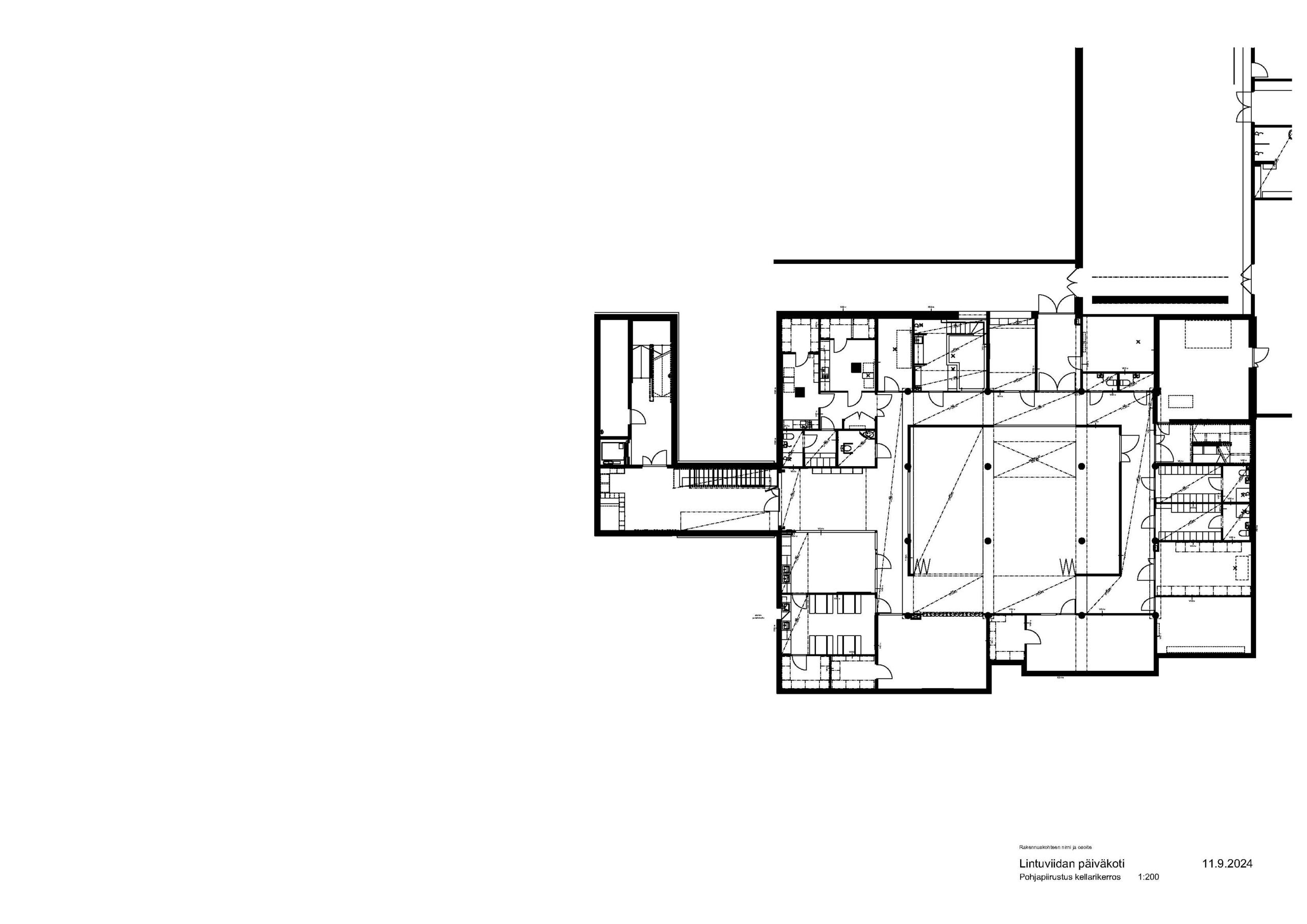
  2. Vanhan päiväkodin peruskorjaus ja laajennus kellaritiloihin valmistuu toukokuussa 2025. Kellarikerrokseen sijoitetaan liikunta-, kirjasto-, musiikki-, aisti- ja taidetilat, joihin johdetaan luonnonvaloa valokuilujen ja lasiseinien kautta.
  3. Alakoulun peruskorjaus ja laajennus maanpäälliseen puurakenteiseen osaan sekä vajaakäyttöisiin kellaritiloihin. Laajennuksiin sijoitetaan Hanna Vihriälän taidetta prosenttitaiteen periaatteella ja TAIKE:n tuella.

Päiväkodin suunnittelusta vastasi Arkkitehtuuri- ja muotoilutoimisto Tallin, Arkkitehtitoimisto Hirvilammin ja Arkkitehtitoimisto Kaivo-ojan muodostama ryhmittymä.

TEKIJÄT

Arkkitehtuuri ja muotoilutoimisto Talli Oy
Arkkitehtitoimisto Kaivo-oja
Arkkitehtitoimisto Hirvilammi Oy

Arkkitehtisuunnittelutyöryhmä:

Suunnitteluryhmän johtaja: Minna Lukander, Arkkitehti SAFA
Pääsuunnittelija: Teemu Hirvilammi, Arkkitehti SAFA
Projektiarkkitehti: Anne Kaivo-oja, Arkkitehti SAFA
Tiina Juuti, Arkkitehti SAFA
Emilia Nysten, Sisustusarkkitehti

Faktat kohteesta

Linnunradan päiväkoti

  • Sijainti | Seinäjoki
  • Käyttötarkoitus | Päiväkoti
  • Rakennuttaja/Tilaaja | Seinäjoen kaupunki
  • Valmistumisvuosi | 2024
  • Kerrosala | 1 659 m2
  • Kokonaisala | 2 013 m2
  • Tilavuus | 7 290 m3
  • Investointikustannukset | 5 734 000€
  • Arkkitehtisuunnittelu | Arkkitehtuuri ja muotoilutoimisto Talli Oy, Arkkitehtitoimisto Kaivo-oja, Arkkitehtitoimisto Hirvilammi Oy
  • Rakennesuunnittelu | Contria Oy
  • LVIA-suunnittelu | Granlund Oy
  • Sähkösuunnittelu | Sähköinsinööritoimisto Ratex Oy
  • Muut suunnittelijat ja asiantuntijat | Pihasuunnittelu: LASS Landscape Architecture Oy
  • Pääurakoitsija | KE Construction
  • Muut materiaalit | Irtokalusteet: Kuopion Woodi
  • Valokuvat | Kalle Kouhia